SUNRISE
Priced at Essential Features
From the $269 's
Does Not Include Lot, permits, or site work
Type: Split Level
Area (SQ FT): 1,776
Bedrooms:
4
Bathrooms: 3
Garages: 2
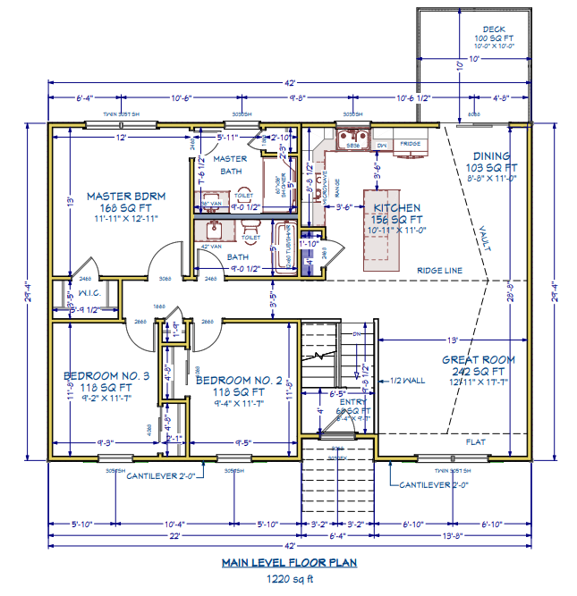
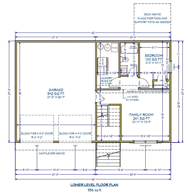
Discover the perfect blend of space and style with the Sunrise floor plan. This thoughtfully designed split-level home welcomes you with its airy layout and modern features. As you ascend the stairs, you'll be greeted by a stunning open-concept vaulted kitchen, complete with a center island that's ideal for meal prep or casual dining. The vaulted great room creates a warm and inviting space for relaxing or gathering, seamlessly flowing into a generous dining area. Step outside from the dining room onto your expansive 12x12 back deck—perfect for outdoor entertaining or simply enjoying the fresh air. The main level boasts three spacious bedrooms and two full baths, including a primary suite with a private en suite bathroom and walk-in closet, offering a peaceful retreat. On the lower level, you’ll find additional living space with a fourth bedroom, a full bathroom, a private laundry room, and plenty of storage. Whether you need extra room for guests, a home office, or a playroom, this versatile space has you covered. For peace of mind, the builder offers lifetime basement waterproofing and a comprehensive limited warranty, covering everything from the foundation to the fridge. Stay in the loop with the BuilderTrend app, where you can track progress, manage warranties, and more. Ask about special financing options through our preferred lenders, who provide attractive incentives to make your dream home a reality. The Sunrise floor plan—where comfort and convenience come together beautifully.
Primary Features for this Floor Plan
- 4 Bedrooms
- 3 Bathrooms
- 2 Car Garage
- 1,776 Sq Ft
- Main level has 3 Bedrooms and 2 Full Baths
- Open Concept Vaulted Great Room and Kitchen
- Kithen Center Island
- Pantry Closet
- Private Laundry Room
- Large Primary Bedroom with En Suite Bathroom & Walk-In Closet
- Finished Lower Level W/ Bedroom, Family Room and Laundry
- 8’ Ceilings
- 8’ Basement Walls
- 12x12 Back Deck off Dining Room
- Appliances Package
- 1 Year Builder Warranty
- 10 Year Structure Warranty
- Lifetime Basement Waterproof Warranty
Floor Plan Flyer
Want to See this Floor Plan? Fill out Form below or Call or Text Now.
Share with Friends
SUNRISE HOMES FOR SALE
Under Construction
Coming Soon
CA Jones offers three Buyer Influenced product line series. The Essential Series, Traditional Series, and Premium Series homes all feature more included features as a standard than other home builders in the Metro East area, so you can’t go wrong with any choice.
Essential
Exterior
- Maintenance Free Vinyl Siding - Standard Colors
- Maintenance Free Enclosed Soffit - White
- Maintenance Free Aluminum Fascia - White
- Maintenance Free 7' Tall Garage Door - White
- Chain Driven Garage Door Opener with Keypad
- One Foot Eave Overhangs on Roof
- Architectural Asphalt Shingles
- Exterior Rot Resistant Door Frames
- Single-Hung Low-E Tilt in Vinyl Windows
- Two Coach Lights on Garage (selections part of lighting allowance)
- Brick Skirt on Front Elevation - when required Covenants & Restrictions
- Two Exterior Faucets on Exterior of Home
- Concrete Patio - 12 x 12
- Concrete Driveway - 17' Wide
- Final Grading of Yard
- Corrugated Drain Pipes - Connected and Buried 7' Away from Foundation
- Seed, Fertilize, and Straw Entire Lot - Sod only Per Neighborhood Requirements
- Steel Entry Front Door (No Glass included)Interior
- Sheet Vinyl Flooring in Foyer, Kitchen, Dining Room, Laundry & Bathrooms
- Programmable Electronic Thermostat
- 90+ Efficiency Natural Gas Furnace
- Electric 50 Gallon Hot Water Heater
- White Hollow-Core Interior Doors (Various Styles Available)
- Wall to Wall Carpeting with 5lb Pad in Bedrooms, Closets, Stairs, Hallways and Great Room
- Epoxy Coated Wire Shelves In Closets & Panty
- 2 Low Voltage Jacks
- 200 Amp Electrical Service
- 8' Ceilings Throughout Home
- Chrome Door Hardware
- Washer/Dryer Hookups With Dryer Vent
- Electric Smoke Detectors with External Battery Backup
- Carbon Monoxide Detector (Per Code)
- Front Door Chime
- Smooth Finish Drywall
- Towel Bars & Toilet Paper Holders
- Caulk & Seal Package (Prior To Insulation)
- $750 Lighting Allowance / $1000 if over 1,750 Sq. Ft.Kitchen
- Stainless Double-Bowl Sink with Chrome Delta Sprayer Faucet
- Refrigerator Water Line for Ice-maker
- Garbage Disposal
- Center Island (per plan)
- 30" Upper Cabinets
- High Definition Post Form Countertops
- Dishwasher, Electric Range, and Vent Hood - WhiteBathroom
- Full Bathroom with Fiberglass Shower in Master Bedroom
- Cultured White Marble Vanity Tops
- Plate Glass Mirrors
- Single Vanity
- Fiberglass Tub/Shower Combo in Hall Bath
- Elongated ToiletsBedroom
- Walk-In Closet in Master Bedroom (Per Plans)
- Carpet with 6 lb Padding
- Overhead Lighting Throughout (Supports Ceiling Fans)
- White Wire Shelving in Closets and PantryMisc
- C.A Jones, Inc Meets Current Illinois Energy Conservation Codes
- 10 Year Professional Home Builders Limited Warranty (3rd Party)
- Exterior Wall Insulation (Per Current IECC Standards)
- 3/4" Tongue and Groove Subfloor 50 Year Warranty (Homes with Basements)
- Insulation Blanket on Basement Walls For Energy Efficiency (Per Plans)
- Poly Water Supply Lines
- Low E Thermal Insulated Patio Doors
- 13 Seer A/C Perimeter Drain Tile System With Sump Crock & Pump (Homes with Basements)
- (Pump Excluded in Walk Out Basements)
- Termite Treatment
- Keyless Entry Garage Door
See What Our Clients Say about Us

Schedule a Private Floor Plan Tour Today
Get a Private or Virtual Floor Plan Tour or Visit a Community. Set up a time to go over floor plans at our Design Center.
Floor Plan Questions?
Have a question? I can help narrow down your Floor Plan search. Get information from a New Home Specialist specific to your needs













